Best WPB9IQT48SB - Manuel d'utilisation

Best WPB9IQT48SB

Hotte de cuisine Best WPB9IQT48SB - Manuel d'utilisation, à lire gratuitement en ligne au format PDF. Nous espérons que cela vous aidera à résoudre toutes les questions que vous pourriez avoir. Si vous avez encore des questions, contactez-nous via le formulaire de contact.

1 Page 1
2 Page 2
3 Page 3
4 Page 4
5 Page 5
6 Page 6
7 Page 7
8 Page 8
9 Page 9
10 Page 10
11 Page 11
12 Page 12
13 Page 13
14 Page 14
15 Page 15
16 Page 16
17 Page 17
18 Page 18
19 Page 19
20 Page 20
21 Page 21
22 Page 22
23 Page 23
24 Page 24
Page: / 24

Table des matières:

  • Page 3 – Modèle
  • Page 5 – LIRE CES DIRECTIVES ET LES CONSERVER; CONÇUE POUR LES CUISINES PRIVÉES UNIQUEMENT
  • Page 6 – AVERTISSEMENTS; ATTENTION
  • Page 7 – NETTOYAGE ET ENTRETIEN; Moteur
  • Page 9 – PRÉPARATION DE LA HOTTE
  • Page 10 – INSTALLER LES CONDUITS
  • Page 11 – INSTALLEZ LA HOTTE
  • Page 13 – INSTALLATION ELECTRIQUE; nexion électrique; FIXEZ LE COLLIER
  • Page 14 – Centrez avec soin
  • Page 15 – INSTALLATION DES FILTRES
  • Page 16 – CALIBRAGE DU VENTILATEUR IQ
  • Page 18 – PIÈCES DE RECHANGE; MODÈLE WPB9
Téléchargement du manuel

- 10 -

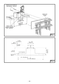
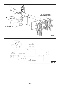
MOUNTING LAG

SCREWS (6x60mm)

WALL FRA-

MING

FIG. 7

FIG. 8

MOUNTING LAG

SCREWS (6x60mm)

„Téléchargement du manuel“ signifie que vous devez attendre que le fichier soit complètement chargé avant de pouvoir le lire en ligne. Certains manuels sont très volumineux, et le temps de chargement dépend de la vitesse de votre connexion Internet.

Résumé

Page 3 - Modèle

- 18 - Modèle WPB9 ENGLISH........................................ 3 FRANÇAIS................................... 18 ESPAÑOL.................................. ...35 Aux États-Unis - BEST Hartford, WisconsinAu CANADA - BEST Drummondville, QC, Canada ENREGISTREZ VOTRE PRODUIT EN LIGNE À : www.BestRange...

Page 5 - LIRE CES DIRECTIVES ET LES CONSERVER; CONÇUE POUR LES CUISINES PRIVÉES UNIQUEMENT

- 20 - LIRE CES DIRECTIVES ET LES CONSERVER CONÇUE POUR LES CUISINES PRIVÉES UNIQUEMENT ! ! AVERTISSEMENTS POUR RÉDUIRE LES RISQUES D’INCENDIE, D’ÉLECTROCUTION OU DE BLESSURES PHY-SIQUES, RESPECTEZ LES INSTRUCTIONS CI-DESSOUS : 1. Utilisez cet appareil uniquement de la manière prévue par le fabrican...

Page 6 - AVERTISSEMENTS; ATTENTION

- 21 - AVERTISSEMENTS POUR RÉDUIRE LE RISQUE DE BLESSURES PHYSIQUES EN CAS DE FEU DE FRITURE SUR LA TABLE DE CUISSON, VEUILLEZ PROCÉDER COMME SUIT :* 1. ÉTOUFFEZ LES FLAMMES avec un couvercle hermétique, une plaque à biscuits ou un plateau en métal, puis éteignez le brûleur. SOYEZ PRUDENT(E) AFIN D’...

Autres modèles de hottes de cuisine Best

Tous les hottes de cuisine Best