Page 10 - Avec la NOUVELLE TECHNOLOGIE DE
AVERTISSEMENT : Le fait de ne pas respecter les instructions données dans le présent guide avec exactitude risque d'entraîner une explosion ou un incendie causant des dommages matériels, des blessures et des pertes de vie. APPAREIL DE CHAUFFAGE AU PROPANE À AIR PULSÉ POUR CHANTIER DE CONSTRUCTION Av...
Page 11 - EL MONOXIDO DE CARBONO PUEDE MATARLO; INFORMATIONS GÉNÉRALES
2 TABLE DES MATIÈRES ........................................................................ ...................................................................... ............................. .......................................... 4 ................ ...................................... .......
Page 12 - DIMENSION SPÉCIFICATIONS
3 PRÉCAUTIONS LIÉES AU FONCTIONNEMENT Modèle :: Longueur(Pouces) Largeur (Pouces) Hauteur(Pouces) Peser(LBS) DIMENSION SPÉCIFICATIONS ATTENTION: Pour une utilisation avec propane seulementNE PAS UTILISER AVEC LES CONDUITES SPÉCIFICATIONS Model: MH60QFAV MH85QFAV MH125QFAV ** **
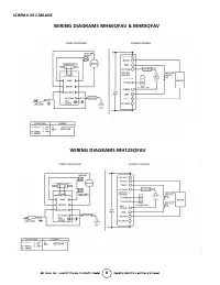
Page 13 - PRÉCAUTIONS LIÉES À LA SÉCURITÉ; Plancher
4 PRÉCAUTIONS LIÉES À LA SÉCURITÉ les contre les dommages. n'orientez pas 7. IMPORTANT : Figure 1 propane. Figure 2 . munie de trois broches. Vous ne devez jamais ajuster la hauteur du tube de combustion de l’appareil de chauffage lorsque l’appareil est chaud ou fonctionne. Les réglages de hauteur d...
Page 15 - ENTRETIEN ET ENTREPOSAGE; ENTRETIEN; INSTRUCTIONS DE FONCTIONNEMENT; AVANT LE FONCTIONNEMENT; DÉMARRAGE
6 ENTRETIEN ET ENTREPOSAGE ° ENTRETIEN IMPORTANT : correctement, il doit RÉGLAGE EN HAUTEUR DE L‘APPAREIL DE CHAUFFAGE le chauffage soit froid au toucher. INSTRUCTIONS DE FONCTIONNEMENT AVANT LE FONCTIONNEMENT le fabricant. raccord en sens horaire. correctement. DÉMARRAGE propane. chauffage. ARRÊT R...
Page 16 - o o; PROPANE TAUX / LP vaporation; Tableau Radiateur au propane sélection Cylindre
7 TABLEAU DE DIMENSIONS ET CONTENANCES DES BONBONNES DE GAZ PROPANE REQUISES 60 000 BTU/H (16,1 kW) 85 000 BTU/H (33,4 kW) º º º º 125 000 BTU/H (49,1 kW) º º PROPANE TAUX / LP vaporation (100LBS par bouteille de propane) Pounds of Propane in Cylinder Maximum continuous BTU Output per Hour at Variou...
Page 21 - INFORMATIONS SUR LA COMMANDE DE PIÈCES :; POUR OBTENIR DES INFORMATIONS SUR LE SERVICE; LISEZ SOIGNEUSEMENT LES INSTRUCTIONS :
AVERTISSEMENT : INFORMATIONS SUR LA COMMANDE DE PIÈCES : ACHAT : POUR OBTENIR DES INFORMATIONS SUR LE SERVICE GARANTIE LIMITÉE GUIDE D'UTILISATION ET MANUEL DU PROPRIÉTAIRE LISEZ SOIGNEUSEMENT LES INSTRUCTIONS : ANSI Z83.7b/CGA 2.14b-2011