Whirlpool WVW53UC0HV - Notice

Whirlpool WVW53UC0HV

Hotte de cuisine Whirlpool WVW53UC0HV - Notice, à lire gratuitement en ligne au format PDF. Nous espérons que cela vous aidera à résoudre toutes les questions que vous pourriez avoir. Si vous avez encore des questions, contactez-nous via le formulaire de contact.

1 Page 1
2 Page 2
3 Page 3
4 Page 4
5 Page 5
6 Page 6
7 Page 7
8 Page 8
9 Page 9
10 Page 10
11 Page 11
12 Page 12
13 Page 13
14 Page 14
15 Page 15
16 Page 16
17 Page 17
18 Page 18
19 Page 19
20 Page 20
Page: / 20

Table des matières:

  • Page 2 – Your safety and the safety of others are very important.; DANGER
  • Page 4 – SÉCURITÉ DE LA HOTTE DE CUISINIÈRE; Votre sécurité et celle des autres est très importante.; AVERTISSEMENT
  • Page 5 – IMPORTANTES INSTRUCTIONS DE SÉCURITÉ; LIRE ET CONSERVER CES INSTRUCTIONS
  • Page 6 – EXIGENCES D’INSTALLATION; Outils et pièces; Outils nécessaires; Pièces fournies; Exigences d’emplacement; Installation dans une résidence mobile
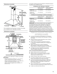
  • Page 7 – Exigences concernant l’évacuation; (seulement pour un modèle
  • Page 9 – Spécifications électriques
  • Page 10 – INSTRUCTIONS D’INSTALLATION; Préparation de l’emplacement; Installation des vis de montage de la hotte
  • Page 11 – Achever la préparation; Installation de la hotte
  • Page 12 – Raccordement électrique
  • Page 13 – Installation des cache‐conduits; Achever l’installation
  • Page 14 – UTILISATION DE LA HOTTE; Commandes de la hotte de cuisinière; Utilisation de l’éclairage
  • Page 15 – ENTRETIEN DE LA HOTTE; Nettoyage; Surfaces externes
  • Page 16 – SCHÉMA DE CÂBLAGE; Ph Neu Terre
  • Page 17 – ASSISTANCE OU SERVICE; Au Canada
  • Page 18 – SI VOUS AVEZ BESOIN DE SERVICE :; GARANTIE LIMITÉE DE UN AN
Téléchargement du manuel

30" AND 36" (76.2 AND 91.4 CM)

WALL‑MOUNT CANOPY RANGE HOOD

Installation Instructions and Use and Care Guide

For questions about features, operation/performance, parts, accessories, or service, call:

1-800-253-1301

or visit our website at

www.whirlpool.com.

In Canada, call

1-800-807-6777 or visit our website at www.whirlpool.ca.

HOTTE DE CUISINIÈRE À MONTAGE MURAL

DE 30" ET 36" (76,2 ET 91,4 CM)

Instructions d’installation et Guide d’utilisation et d’entretien

Au Canada, pour assistance, installation ou service, composer le

1-800-807-6777

ou visiter notre site Web à

www.whirlpool.ca.

Table of Contents/Table des matières ..................................... 2

LIB0114550D/W11134240C

IMPORTANT: READ AND SAVE THESE INSTRUCTIONS.

FOR RESIDENTIAL USE ONLY.

IMPORTANT : LIRE ET CONSERVER CES INSTRUCTIONS.

POUR UTILISATION RÉSIDENTIELLE UNIQUEMENT.

„Téléchargement du manuel“ signifie que vous devez attendre que le fichier soit complètement chargé avant de pouvoir le lire en ligne. Certains manuels sont très volumineux, et le temps de chargement dépend de la vitesse de votre connexion Internet.

Autres Manuels pour Whirlpool WVW53UC0HV

Résumé

Page 2 - Your safety and the safety of others are very important.; DANGER

2 TABLE OF CONTENTS TABLE DES MATIÈRES RANGE HOOD SAFETY You can be killed or seriously injured if you don't immediately You can be killed or seriously injured if you don't follow All safety messages will tell you what the potential hazard is, tell you how to reduce the chance of injury, and tell yo...

Page 4 - SÉCURITÉ DE LA HOTTE DE CUISINIÈRE; Votre sécurité et celle des autres est très importante.; AVERTISSEMENT

16 SÉCURITÉ DE LA HOTTE DE CUISINIÈRE Risque possible de décès ou de blessure grave si vous ne suivez pas immédiatement les instructions. Risque possible de décès ou de blessure grave si vous ne suivez pas les instructions. Tous les messages de sécurité vous diront quel est le danger potentiel et vo...

Page 5 - IMPORTANTES INSTRUCTIONS DE SÉCURITÉ; LIRE ET CONSERVER CES INSTRUCTIONS

17 IMPORTANTES INSTRUCTIONS DE SÉCURITÉ LIRE ET CONSERVER CES INSTRUCTIONS AVERTISSEMENT : POUR RÉDUIRE LE RISQUE D'INCENDIE, CHOC ÉLECTRIQUE OU DOMMAGES CORPORELS, RESPECTER LES INSTRUCTIONS SUIVANTES : ■ Utiliser cet appareil uniquement dans les applications envisagées par le fabricant. Pour toute...

Autres modèles de hottes de cuisine Whirlpool