Whirlpool CGD9150GW - Notice

Whirlpool CGD9150GW

Séchoir Whirlpool CGD9150GW - Notice, à lire gratuitement en ligne au format PDF. Nous espérons que cela vous aidera à résoudre toutes les questions que vous pourriez avoir. Si vous avez encore des questions, contactez-nous via le formulaire de contact.

1 Page 1
2 Page 2
3 Page 3
4 Page 4
5 Page 5
6 Page 6
7 Page 7
8 Page 8
9 Page 9
10 Page 10
11 Page 11
12 Page 12
13 Page 13
14 Page 14
15 Page 15
16 Page 16
17 Page 17
18 Page 18
19 Page 19
20 Page 20
21 Page 21
22 Page 22
23 Page 23
24 Page 24
25 Page 25
26 Page 26
27 Page 27
28 Page 28
29 Page 29
30 Page 30
31 Page 31
32 Page 32
Page: / 32

Table des matières:

  • Page 1 – DRYER SAFETY; TABLE OF CONTENTS; TABLE DES MATIÈRES
  • Page 3 – SÉCURITÉ DE LA SÉCHEUSE; – QUE FAIRE DANS LE CAS D’UNE ODEUR DE GAZ :; AVERTISSEMENT :
  • Page 6 – EXIGENCES D’INSTALLATION; Outillage nécessaire :; Outils et pièces
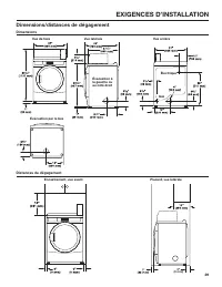
  • Page 7 – Dimensions/distances de dégagement
  • Page 8 – Exigences concernant l’évacuation
  • Page 9 – Hottes d’extraction; Longueur du système d’évacuation
  • Page 11 – Exigences de l’emplacement; Exigences d’installation pour la sécheuse à gaz
  • Page 12 – Spécifications électriques
  • Page 13 – AVERTISSEMENT; Alimentation en gaz
  • Page 14 – Type de gaz; Canalisation d’alimentation en gaz
  • Page 15 – Exigences d’installation pour la sécheuse électrique
  • Page 16 – INSTRUCTIONS DE LIAISON À LA TERRE
  • Page 17 – INSTALLATION DES PIEDS DE NIVELLEMENT, DE LA GLISSIÈRE
  • Page 18 – INSTRUCTIONS D’INSTALLATION POUR LA SÉCHEUSE À GAZ; Raccordement à la canalisation de gaz
  • Page 19 – NIVELLEMENT
  • Page 20 – ACHEVER L’INSTALLATION
  • Page 21 – INVERSION DU SENS D’OUVERTURE DE LA PORTE
  • Page 24 – Informations générales d’utilisation
  • Page 25 – Paramétrage en début d’exploitation; INSTRUCTIONS DE RÉGLAGE DU TABLEAU DE COMMANDE; Codes de paramétrage
Téléchargement du manuel

2

DRYER SAFETY

It is recommended that the owner post, in a prominent location, instructions for the customer’s use in the event the customer

smells gas. This information should be obtained from your gas supplier.

Post the following warning in a prominent location.

TABLE OF CONTENTS

Page

DRYER SAFETY ....................................................................... 2
INSTALLATION REQUIREMENTS ........................................... 5

Tools and Parts .................................................................... 5
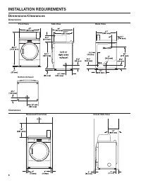
Dimensions/Clearances

...................................................... 6

Venting Requirements ........................................................ 7
Gas Dryer Installation Requirements ................................ 10
Electric Dryer Installation Requirements ........................... 14

INSTALLING LEVELING LEGS, COIN SLIDE,

AND COIN BOX ..................................................................... 17
INSTALLATION INSTRUCTIONS – GAS DRYER .................. 18

Make Gas Connection ...................................................... 18

INSTALLATION INSTRUCTIONS – ELECTRIC DRYER ....... 19

Electric Dryer Electrical Connections ............................... 19

LEVELING .............................................................................. 24
COMPLETE INSTALLATION ................................................. 24
REVERSING DRYER DOOR SWING .................................... 25
MAINTENANCE INSTRUCTIONS ......................................... 27
IF YOU NEED ASSISTANCE ................................................. 27
ELECTRONIC CONTROL SETUP INSTRUCTIONS ........... 28
WARRANTY .......................................................................... 34

TABLE DES MATIÈRES

Page

SÉCURITÉ DE LA SÉCHEUSE .............................................. 35
EXIGENCES D’INSTALLATION ............................................. 38

Outils et pièces .................................................................. 38
Dimensions/Distances de dégagement ............................. 39
Exigences concernant l’évacuation ................................... 40
Exigences d’installation pour la sécheuse à gaz ................ 43
Exigences d’installation pour la sécheuse électrique ........ 47

INSTALLATION DES PIEDS DE NIVELLEMENT,

DE LA GLISSIÈRE À MONNAIE ET DE LA CAISSE

À MONNAIE ........................................................................... 49
INSTRUCTIONS D’INSTALLATION

POUR LA SÉCHEUSE À GAZ ................................................ 50

Raccordement à la canalisation de gaz ............................. 50

NIVELLEMENT ....................................................................... 51
ACHEVER L’INSTALLATION ................................................. 52
INVERSION DU SENS D’OUVERTURE

DE LA PORTE DE LA SÉCHEUSE ........................................ 53
INSTRUCTIONS D’ENTRETIEN ............................................ 55
SI VOUS AVEZ BESOIN D’ASSISTANCE .............................. 55
INSTRUCTIONS DE RÉGLAGE DU TABLEAU

DE COMMANDE ÉLECTRONIQUE ...................................... 56
GARANTIE ............................................................................. 63

„Téléchargement du manuel“ signifie que vous devez attendre que le fichier soit complètement chargé avant de pouvoir le lire en ligne. Certains manuels sont très volumineux, et le temps de chargement dépend de la vitesse de votre connexion Internet.

Résumé

Page 1 - DRYER SAFETY; TABLE OF CONTENTS; TABLE DES MATIÈRES

2 DRYER SAFETY ■ It is recommended that the owner post, in a prominent location, instructions for the customer’s use in the event the customer smells gas. This information should be obtained from your gas supplier. ■ Post the following warning in a prominent location. TABLE OF CONTENTS Page DRYER SA...

Page 3 - SÉCURITÉ DE LA SÉCHEUSE; – QUE FAIRE DANS LE CAS D’UNE ODEUR DE GAZ :; AVERTISSEMENT :

35 SÉCURITÉ DE LA SÉCHEUSE ■ On recommande que le propriétaire place les instructions à l’usage du client en un lieu bien visible, au cas où le client percevrait une odeur de gaz. Ces renseignements doivent être obtenus auprès de votre fournisseur en gaz. ■ Placer l’avertissement qui suit à un endro...

Page 6 - EXIGENCES D’INSTALLATION; Outillage nécessaire :; Outils et pièces

38 † ® TORX et T20 sont les marques déposée de Acument Intellectual Properties, LLC. Pièces fournies : Patins (4) Pieds de la sécheuse (4) EXIGENCES D’INSTALLATION Outillage nécessaire : Clé à tuyau Clé à molette de 8" (200 mm) Tournevis à lame plate Tournevis Phillips de 8" (200 mm) ou 10&#...

Autres modèles de séchoirs Whirlpool