Siemens LI44930 - Manuel d'utilisation

Siemens LI44930

Siemens LI44930 - Manuel d'utilisation, à lire gratuitement en ligne au format PDF. Nous espérons que cela vous aidera à résoudre toutes les questions que vous pourriez avoir. Si vous avez encore des questions, contactez-nous via le formulaire de contact.

1 Page 1
2 Page 2
3 Page 3
4 Page 4
5 Page 5
6 Page 6
7 Page 7
8 Page 8
9 Page 9
10 Page 10
11 Page 11
12 Page 12
13 Page 13
14 Page 14
15 Page 15
16 Page 16
17 Page 17
Page: / 17

Table des matières:

  • Page 3 – Modes de fonctionnement; Vous pouvez vous procurer le kit de; votre revendeur; Si vous n'incorporez aucun filtre au; Description de l'appareil; Si la hotte évacue l'air à l'extérieur et; pour assurer la marche du
  • Page 4 – Avant la première utilisation; Remarques importantes:; réparations
  • Page 5 – Utilisation de la hotte aspirante; Enclencher la hotte aspirante; Pour réenclencher la hotte,; Dérangements; N° E FD
  • Page 6 – Filtre et entretien; Indicateur de saturation:; Le cadre de retenue des filtres à
  • Page 7 – Filtre à charbon actif:; Mise en place du filtre:; les ampoules halogènes doivent
  • Page 8 – Nettoyage et entretien; Surfaces en acier inox:; Changer les ampoules halogènes
  • Page 9 – Remarques importantes
  • Page 10 – L'air vicié ne doit jamais être évacué; Si l'air vicié traverse le mur extérieur,; utilisez une ventouse télescopique.; Avant le montage
  • Page 11 – Conduit d’aspiration long:; Mode Air recyclé
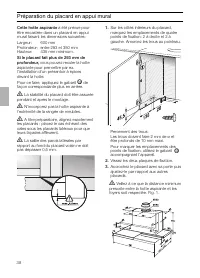
  • Page 12 – Préparation du placard en appui mural; Cette hotte aspirante
  • Page 13 – Encastrement dans le placard en appui mural; Contrôler l'alignement de la porte du
  • Page 14 – Air évacué; Montage de la poignée:; A l’aide du gabarit; accompagnant
  • Page 15 – La hotte aspirante
Téléchargement du manuel

LI 44930
LI 46930

de

en

fr

nl

it

es

pt

Gebrauchs- und
Montageanweisung
Operating and
installation instructions
Mode d’emploi et
notice de montage
Gebruiksaanwijzing en
montagevoorschrift

Istruzioni d’uso
e per il montaggio
Instrucciones de uso
y de montaje
Instruções de serviçio
e de montagem

„Téléchargement du manuel“ signifie que vous devez attendre que le fichier soit complètement chargé avant de pouvoir le lire en ligne. Certains manuels sont très volumineux, et le temps de chargement dépend de la vitesse de votre connexion Internet.

Résumé

Page 3 - Modes de fonctionnement; Vous pouvez vous procurer le kit de; votre revendeur; Si vous n'incorporez aucun filtre au; Description de l'appareil; Si la hotte évacue l'air à l'extérieur et; pour assurer la marche du

29 Modes de fonctionnement On y parvient en présence d'ouvertures nonobturables ménagées par ex. dans les por-tes, fenêtres et en association avec desventouses télescopiques d'admission/évacuation de l'air à travers la maçonnerieou par d'autres mesures techniques tellesqu'un verrouillage réciproque ...

Page 4 - Avant la première utilisation; Remarques importantes:; réparations

30 Avant la première utilisation Remarques importantes: ❑ La présente notice d'emploi vaut pourplusieurs versions de l'appareil. Elle peut contenir des descriptions d'accessoires ne figurant pas dans votreappareil. ❑ Cette hotte aspirante est conforme aux dispositions de sécurité applicables. Les ré...

Page 5 - Utilisation de la hotte aspirante; Enclencher la hotte aspirante; Pour réenclencher la hotte,; Dérangements; N° E FD

31 Utilisation de la hotte aspirante La méthode la plus efficace pour supprimer les buées de cuisson consiste à ❑ Enclencher la hotte aspirante en début de cuisson. ❑ Eteindre la hotte aspirante quelques minutes après la fin de la cuisson. VentilateurMarche / Arrêt EclairageMarche / Arrêt Aspiration...

Autres modèles de Siemens

Tous les autres Siemens