Mr. Heater MHC125FAV - Manuel d'utilisation

Mr. Heater MHC125FAV

Chauffage Mr. Heater MHC125FAV - Manuel d'utilisation, à lire gratuitement en ligne au format PDF. Nous espérons que cela vous aidera à résoudre toutes les questions que vous pourriez avoir. Si vous avez encore des questions, contactez-nous via le formulaire de contact.

1 Page 1
2 Page 2
3 Page 3
4 Page 4
5 Page 5
6 Page 6
7 Page 7
8 Page 8
9 Page 9
10 Page 10
11 Page 11
12 Page 12
Page: / 12

Table des matières:

  • Page 1 – LISEZ SOIGNEUSEMENT LES INSTRUCTIONS :; Lisez et suivez toutes les instructions. Placez les instructions; GUIDE D'UTILISATION ET MANUEL DU PROPRIÉTAIRE; APPAREIL DE CHAUFFAGE; • ANGLAIS
  • Page 2 – LE MONOXYDE DE CARBONE PEUT VOUS TUER; AVERTISSEMENT GÉNÉRAL; INFORMATIONS GÉNÉRALES; SOMMAIRE; AVERTISSEMENT
  • Page 3 – PRÉCAUTIONS LIÉES AU
  • Page 4 – PRÉCAUTIONS LIÉES À LA SÉCURITÉ
  • Page 6 – ENTRETIEN ET ENTREPOSAGE; ENTRETIEN; AVANT LE FONCTIONNEMENT
  • Page 7 – TABLEAU DE DIMENSIONS ET
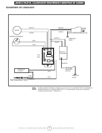
  • Page 8 – SCHÉMA DE CÂBLAGE
  • Page 11 – INFORMATIONS SUR LA COMMANDE DE PIÈCES :; POUR OBTENIR DES INFORMATIONS SUR LE SERVICE; GUIDE D'UTILISATION ET; Lisez et observez toutes les instructions. Conservez ces
Téléchargement du manuel

— N'entreposez ni n'utilisez d'essence ou autres liquides ou vapeurs inflammables à proximité de ce

type d'appareil.

— Aucune bonbonne de propane liquéfié non raccordée pour utilisation ne doit se trouver à

proximité de cet appareil, ni d'aucun autre appareil.

— EN PRÉSENCE D'UNE ODEUR DE GAZ
• Ne tentez pas d'allumer l'appareil de chauffage.
• Éteignez toute flamme nue.
• Fermez l'alimentation en gaz à l'appareil.
— L'entretien doit être effectué par un fournisseur de services d'entretien qualifié.

Cet appareil de chauffage portatif alimenté au gaz n'est pas ventilé. Il utilise l'oxygène de l'air ambiant.
Une circulation d'air adéquate doit être assurée pour la combustion et la ventilation. Voir page 4.

Le fait de ne pas respecter les instructions données dans le présent guide avec
exactitude risque d'entraîner une explosion ou un incendie causant des
dommages matériels, des blessures et des pertes de vie.

LISEZ SOIGNEUSEMENT LES INSTRUCTIONS :

Lisez et suivez toutes les instructions. Placez les instructions

dans un endroit sûr pour référence future. Ne laissez personne n'ayant pas lu ces instructions monter,
allumer, régler ou faire fonctionner le radiateur.

Modèle #

MHC60FAV,

MHC125FAV

GUIDE D'UTILISATION ET MANUEL DU PROPRIÉTAIRE

APPAREIL DE CHAUFFAGE

AU PROPANE À AIR PULSÉ

POUR CHANTIER DE CONSTRUCTION

www.mrheater.com

800-251-0001

LANGUES INCLUS:

• ANGLAIS

• FRANCAIS

• ESPAGNOL

AVERTISSEMENT:

NE JAMAIS LAISSER LE CHAUFFAGE SANS SURVEILLANCE PENDANT LE BRÛLAGE!

NE JAMAIS LAISSER LE CHAUFFAGE SANS SURVEILLANCE PENDANT LE BRÛLAGE!

NE JAMAIS LAISSER LE CHAUFFAGE SANS SURVEILLANCE PENDANT LE BRÛLAGE!

20898

„Téléchargement du manuel“ signifie que vous devez attendre que le fichier soit complètement chargé avant de pouvoir le lire en ligne. Certains manuels sont très volumineux, et le temps de chargement dépend de la vitesse de votre connexion Internet.

Résumé

Page 1 - LISEZ SOIGNEUSEMENT LES INSTRUCTIONS :; Lisez et suivez toutes les instructions. Placez les instructions; GUIDE D'UTILISATION ET MANUEL DU PROPRIÉTAIRE; APPAREIL DE CHAUFFAGE; • ANGLAIS

— N'entreposez ni n'utilisez d'essence ou autres liquides ou vapeurs inflammables à proximité de ce type d'appareil. — Aucune bonbonne de propane liquéfié non raccordée pour utilisation ne doit se trouver à proximité de cet appareil, ni d'aucun autre appareil. — EN PRÉSENCE D'UNE ODEUR DE GAZ • Ne t...

Page 2 - LE MONOXYDE DE CARBONE PEUT VOUS TUER; AVERTISSEMENT GÉNÉRAL; INFORMATIONS GÉNÉRALES; SOMMAIRE; AVERTISSEMENT

Operating Instructions and Owner’s Manual Mr. Heater, Inc.| Forced Air Propane Construction Heater 2 NE JAMAIS LAISSER LE CHAUFFAGE SANS SURVEILLANCE PENDANT LE BRÛLAGE! NE JAMAIS LAISSER LE CHAUFFAGE SANS SURVEILLANCE PENDANT LE BRÛLAGE! NE JAMAIS LAISSER LE CHAUFFAGE SANS SURVEILLANCE PENDANT LE B...

Page 3 - PRÉCAUTIONS LIÉES AU

3 Operating Instructions and Owner’s Manual Mr. Heater, Inc.| Forced Air Propane Construction Heater NE JAMAIS LAISSER LE CHAUFFAGE SANS SURVEILLANCE PENDANT LE BRÛLAGE! NE JAMAIS LAISSER LE CHAUFFAGE SANS SURVEILLANCE PENDANT LE BRÛLAGE! NE JAMAIS LAISSER LE CHAUFFAGE SANS SURVEILLANCE PENDANT LE B...

Autres modèles de chauffages Mr. Heater

Tous les chauffages Mr. Heater