Maytag MDE20CSAYW - Manuel d'utilisation

Maytag MDE20CSAYW

Séchoir Maytag MDE20CSAYW - Manuel d'utilisation, à lire gratuitement en ligne au format PDF. Nous espérons que cela vous aidera à résoudre toutes les questions que vous pourriez avoir. Si vous avez encore des questions, contactez-nous via le formulaire de contact.

1 Page 1
2 Page 2
3 Page 3
4 Page 4
5 Page 5
6 Page 6
7 Page 7
8 Page 8
9 Page 9
10 Page 10
11 Page 11
12 Page 12
13 Page 13
14 Page 14
15 Page 15
16 Page 16
17 Page 17
18 Page 18
19 Page 19
20 Page 20
21 Page 21
22 Page 22
23 Page 23
24 Page 24
25 Page 25
26 Page 26
27 Page 27
28 Page 28
29 Page 29
30 Page 30
31 Page 31
32 Page 32
33 Page 33
Page: / 33

Table des matières:

  • Page 4 – SÉCURITÉ DE LA SÉCHEUSE
  • Page 6 – IMPORTANTES INSTRUCTIONS DE SÉCURITÉ
  • Page 7 – OUTILS ET PIÈCES; Outillage nécessaire :
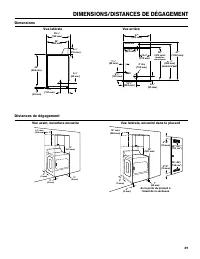
  • Page 8 – DIMENSIONS/DISTANCES DE DÉGAGEMENT
  • Page 9 – Exigences de l’emplacement; EXIGENCES D’INSTALLATION POUR LA SÉCHEUSE À GAZ
  • Page 10 – Mise à la terre de la sécheuse à gaz; Spécifications électriques
  • Page 11 – Alimentation en gaz
  • Page 12 – EXIGENCES D’INSTALLATION POUR LA SÉCHEUSE ÉLECTRIQUE
  • Page 13 – INSTRUCTIONS DE LIAISON À LA TERRE
  • Page 14 – EXIGENCES CONCERNANT L’ÉVACUATION DE LA SÉCHEUSE
  • Page 15 – Hottes d’extraction; Longueur du système d’évacuation
  • Page 16 – Raccordement à la canalisation de gaz; RACCORDEMENT À LA CANALISATION DE GAZ; Si on ne peut pas utiliser de clapet d’évacuation
  • Page 17 – Type de gaz; Canalisation d’alimentation en gaz
  • Page 18 – INSTALLATION DES PIEDS DE NIVELLEMENT, DE LA GLISSIÈRE À
  • Page 19 – NIVELLEMENT
  • Page 20 – ACHEVER L’INSTALLATION
  • Page 21 – INVERSION DU SENS D’OUVERTURE DE LA PORTE (FACULTATIF); Retirer l’assemblée de porte
  • Page 24 – Informations générales d’utilisation
  • Page 25 – Code de paramétrage; Affichage
Téléchargement du manuel

www.maytagcommerciallaundry.com

W10868655A

W10868673A – SP

TABLE OF CONTENTS

DRYER SAFETY .................................................................................................. 2
TOOLS & PARTS ............................................................................................... 5
DIMENSIONS/CLEARANCES ................................................................. 6
GAS DRYER INSTALLATION REQUIREMENTS .............................. 7
ELECTRIC DRYER INSTALLATION REQUIREMENTS .............. 10
DRYER VENTING REQUIREMENTS ................................................. 13
GAS SUPPLY CONNECTION ................................................................. 15
INSTALLING LEVELING LEGS, COIN SLIDE, AND

COIN BOX ......................................................................................................... 17
ELECTRIC DRYER ELECTRICAL CONNECTIONS ..................... 18
LEVELING ......................................................................................................... 23
COMPLETE INSTALLATION ..................................................................... 24
REVERSING DRYER DOOR SWING ................................................... 25
CHANGING TO A 30- OR 60-MINUTE TIMING CAM ................. 26
MAINTENANCE INSTRUCTIONS ......................................................... 27
IF YOU NEED ASSISTANCE ................................................................... 27
ELECTRONIC CONTROL SETUP INSTRUCTIONS ................... 28

WARRANTY ........................................................................................................ 33

TABLE DES MATIÈRES

SÉCURITÉ DE LA SÉCHEUSE ............................................................ 35
OUTILS ET PIÈCES .................................................................................. 38
DIMENSIONS/DISTANCES DE DÉGAGEMENT ...................... 39
EXIGENCES D’INSTALLATION POUR LA

SÉCHEUSE À GAZ ..................................................................................... 40
EXIGENCES D’INSTALLATION POUR

LA SÉCHEUSE ÉLECTRIQUE ........................................................... 43
EXIGENCES CONCERNANT L’ÉVACUATION

DE LA SÉCHEUSE .................................................................................... 45
RACCORDEMENT À LA CANALISATION DE GAZ .................... 47
INSTALLATION DES PIEDS DE NIVELLEMENT,

DE LA GLISSIÈRE À MONNAIE ET DE LA CAISSE

À MONNAIE .................................................................................................. 49
NIVELLEMENT ..............................................................................................50
ACHEVER L’INSTALLATION ....................................................................51
INVERSION DU SENS D’OUVERTURE DE

LA PORTE .........................................................................................................52
INSTALLATION D’UNE CAME DE MINUTAGE

DE 30 OU 60 MINUTES ...........................................................................53
INSTRUCTIONS D’ENTRETIEN ...........................................................54
SI VOUS AVEZ BESOIN D’ASSISTANCE ........................................54
INSTRUCTIONS DE RÉGLAGE DU TABLEAU

DE COMMANDE ÉLECTRONIQUE ................................................... 55
GARANTIE .........................................................................................................61

INSTALLATION INSTRUCTIONS

C

ommerCial

D

ryer

G

as

or

e

leCtriC

INSTRUCTIONS D’INSTALLATION

s

éCheuse

à

usaGe

CommerCial

à

Gaz

ou

éleCtrique

„Téléchargement du manuel“ signifie que vous devez attendre que le fichier soit complètement chargé avant de pouvoir le lire en ligne. Certains manuels sont très volumineux, et le temps de chargement dépend de la vitesse de votre connexion Internet.

Résumé

Page 4 - SÉCURITÉ DE LA SÉCHEUSE

35 SÉCURITÉ DE LA SÉCHEUSE ■ On recommande que le propriétaire place les instructions à l’usage du client en un lieu bien visible, au cas où le client percevrait une odeur de gaz. Ces renseignements doivent être obtenus auprès de votre fournisseur en gaz. ■ Placer l’avertissement qui suit à un endro...

Page 6 - IMPORTANTES INSTRUCTIONS DE SÉCURITÉ

37 SÉCURITÉ DE LA SÉCHEUSE ■ Ne pas utiliser cette sécheuse si le filtre à peluches n’est pas installé. ■ Ne pas réparer ou remplacer un composant quelconque de la sécheuse, ni entreprendre une opération de service, si ce n’est spécifiquement recommandé dans ce manuel ou dans un manuel d’instruction...

Page 7 - OUTILS ET PIÈCES; Outillage nécessaire :

38 OUTILS ET PIÈCES †® TORX et T25 sont les marques déposée de Acument Intellectual Properties, LLC. Pièces fournies : Patins (4) Pieds de la sécheuse (4) Plaque indicatrice (modèles PR seulement) Coin Boulon de 5/16" – Came de minutage de 60 minutes Came de minutage de 30 minutes (modèles PD se...

Autres modèles de séchoirs Maytag