Whirlpool WDT750SAHB - Manuels

model-name

Lave-vaisselle Whirlpool WDT750SAHB - Notice d'Installation, Notice, Guide de dépannage en ligne au format PDF.

1 Page 1
2 Page 2
3 Page 3
4 Page 4
5 Page 5
6 Page 6
7 Page 7
8 Page 8
9 Page 9
10 Page 10
11 Page 11
12 Page 12
13 Page 13
14 Page 14
15 Page 15
16 Page 16
17 Page 17
18 Page 18
19 Page 19
20 Page 20
21 Page 21
22 Page 22
23 Page 23
24 Page 24
25 Page 25
26 Page 26

Résumé

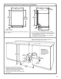
Page 2 - TABLE DES MATIÈRES; Branchement du tuyau de distribution à la valve

52 TABLE DES MATIÈRES SÉCURITÉ DU LAVE-VAISSELLE ................................. 53EXIGENCES D’INSTALLATION ..................................... 54 Outils et pièces ....................................................................... 54 Exigences d’emplacement ....................................

Page 3 - SÉCURITÉ DU LAVE-VAISSELLE; AVERTISSEMENT : Afin de réduire le risque d’incendie, de; Risque possible de décès ou de blessure grave si; Votre sécurité et celle des autres est très importante.; à vous et à d’autres.; vous ne suivez pas immédiatement les instructions.; Risque de basculement; AVERTISSEMENT

53 SÉCURITÉ DU LAVE-VAISSELLE Il faut : ■ Ouvrir lentement la porte du lave-vaisselle tandis qu’une autre personne saisit l’arrière de l’appareil. Enlever le matériau d’expédition et le tuyau de vidange. Fermer la porte du lave- vaisselle; elle doit s’enclencher.REMARQUE : Chaque lave-vaisselle a ét...

Page 4 - EXIGENCES D’INSTALLATION; OUTILS ET PIÈCES; Toutes les installations; Autres articles utiles pouvant être nécessaires :

54 EXIGENCES D’INSTALLATION OUTILS ET PIÈCES Rassembler les outils et composants nécessaires avant d’entreprendre l’installation. Lire et observer les instructions fournies avec chacun des outils de la liste ci-dessous. Toutes les installations Outils nécessaires : Pince Tournevis à lame plate Tourn...

1 Page 1
2 Page 2
3 Page 3
4 Page 4
5 Page 5
6 Page 6
7 Page 7
8 Page 8
9 Page 9
10 Page 10
11 Page 11
12 Page 12
13 Page 13
14 Page 14
15 Page 15
16 Page 16
17 Page 17
18 Page 18
19 Page 19
20 Page 20
21 Page 21
22 Page 22
23 Page 23
24 Page 24
25 Page 25
26 Page 26

Résumé

Page 2 - TABLE DES MATIÈRES

52 TABLE DES MATIÈRES SÉCURITÉ DU LAVE-VAISSELLE ................................. 53EXIGENCES D’INSTALLATION ..................................... 54 Outils et pièces ....................................................................... 54 Exigences d’emplacement ....................................

Page 3 - SÉCURITÉ DU LAVE-VAISSELLE; Risque de basculement; AVERTISSEMENT

53 SÉCURITÉ DU LAVE-VAISSELLE Il faut : ■ Ouvrir lentement la porte du lave-vaisselle tandis qu’une autre personne saisit l’arrière de l’appareil. Enlever le matériau d’expédition et le tuyau de vidange. Fermer la porte du lave- vaisselle; elle doit s’enclencher. REMARQUE : Chaque lave-vaisselle a é...

Page 4 - EXIGENCES D’INSTALLATION; OUTILS ET PIÈCES; Toutes les installations; Autres articles utiles pouvant être nécessaires :

54 EXIGENCES D’INSTALLATION OUTILS ET PIÈCES Rassembler les outils et composants nécessaires avant d’entreprendre l’installation. Lire et observer les instructions fournies avec chacun des outils de la liste ci-dessous. Toutes les installations Outils nécessaires : Pince Tournevis à lame plate Tourn...

1 Page 1

Whirlpool Lave-vaisselle Manuels