Page 2 - TABLA DE CONTENIDOS
2 RANGE HOOD SAFETY .............................2INSTALLATION REQUIREMENTS .............4 Tools and Parts ........................................4Location Requirements ............................4Venting Requirements ..............................5Electrical Requirements ............................
Page 3 - SÉCURITÉ DE LA HOTTE; Votre; AVERTISSEMENT
17 SÉCURITÉ DE LA HOTTE Ri s que po ss ible de décè s ou de ble ss ure g rave s i vou s ne s uivez pa s immédiatement le s in s truction s . Ri s que po ss ible de décè s ou de ble ss ure g rave s i vou s ne s uivez pa s le s in s truction s . Tous les messages de sécurité vous diront quel est le da...
Page 4 - IMPORTANTES INSTRUCTIONS DE SÉCURITÉ; LIRE ET CONSERVER CES INSTRUCTIONS
18 IMPORTANTES INSTRUCTIONS DE SÉCURITÉ LIRE ET CONSERVER CES INSTRUCTIONS AVERTISSEMENT : POUR RÉDUIRE LE RISQUE D'INCENDIE, CHOC ÉLECTRIQUE OU DOMMAGES CORPORELS, RESPECTER LES INSTRUCTIONS SUIVANTES : ■ Utiliser cet appareil uniquement dans les applications envisagées par le fabricant. Pour toute...
Page 5 - EXIGENCES D’INSTALLATION; Outils et pièces; Outils nécessaires; Pièces nécessaires; Exigences d’emplacement; Pour une installation dans une résidence mobile
19 EXIGENCES D’INSTALLATION Outils et pièces Rassembler les outils et pièces nécessaires avant d’entreprendre l’installation. Lire et observer les instructions fournies avec chacun des outils de la liste ci-dessous. REMARQUE : Cette hotte est recommandée pour une utilisation avec une surface de cuis...
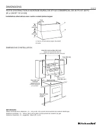
Page 6 - Dimensions d’installation; Exigences d’évacuation; Pour un fonctionnement ef; Installations dans les régions au climat froid
20 Vue arrière Installations alternatives avec cache-conduit pleine largeur Dimensions d’installation IMPORTANT : Valeur minimale de la distance « X » : 24 po (61 cm) à partir de la surface de cuisson électrique.Distance minimale « X » : 30 po (76,2 cm) à partir d’une surface de ...
Page 7 - Spécifi cations électriques
21 Installations d’évacuation typiques avec système de moteur de ventilateur en ligne Calcul de la longueur du circuit d’évacuation Pour calculer la longueur effective du circuit d’évacuation nécessaire, additionner les longueurs équivalentes (en pieds ou mètres) de tous les composants utilisés dans...
Page 8 - INSTRUCTIONS D’INSTALLATION; Préparation de l’emplacement; Installation des vis de montage de la hotte
22 INSTRUCTIONS D’INSTALLATION Préparation de l’emplacement ■ Il est recommandé que l’installation du circuit d’évacuation soit réalisée avant celle de la hotte. ■ Suivre les instructions fournies avec le dosseret (facultatif) pour procéder à son installation. ■ Avant d’effectuer des découpes, s’ass...
Page 9 - Achever la préparation; Installation de la hotte; Préparation du système de ventilation interne
23 16. À l’aide du gabarit, marquer sur le mur et sur l’armoire le centre des trous des organes de fi xation. 17. Retirer le gabarit. REMARQUE : Les vis fournies pour le montage de cette hotte doivent être fi xées dans du bois massif. Ne pas fi xer uniquement dans du Placoplâtre. Achever la préparat...
Page 11 - Installation du moteur du ventilateur; Préparation du système de ventilation en ligne
25 3. Pousser vers le haut le côté droit de la plaque de montage du moteur et l’enclencher dans la languette à ressort. REMARQUE : La languette à ressort doit être à l’extérieur de la fente de la plaque de montage. 4. Aligner les trous de montage et installer 6 vis de 16 mm et rondelles de 6,4 m...
Page 15 - Commandes de la hotte; Fonctionnement de l’éclairage; ENTRETIEN DE LA HOTTE; Lampes de la hotte; Remplacer une lampe DEL
29 3. Si la hotte ne fonctionne pas, véri fi er si un disjoncteur s’est ouvert ou si un fusible du domicile est grillé. Déconnecter la source de courant électrique du circuit et véri fi er que le câblage est correct. REMARQUE : Pour pouvoir tirer le plus grand parti de la nouvelle hotte de cuisinièr...
Page 16 - Nettoyage; Filtres métalliques et plateaux d’égouttement :
30 Nettoyage IMPORTANT : Nettoyer fréquemment la hotte et les fi ltres à graisse en suivant les instructions suivantes. Réinstaller les fi ltres à graisse avant de faire fonctionner la hotte. Surfaces externes : A fi n d’éviter d’endommager la surface externe, ne pas utiliser de tampons en laine d’a...
Page 17 - SCHÉMA DE CÂBLAGE
31 SCHÉMA DE CÂBLAGE N BL R BU GR Neu Ph TERRE N BL JA/VE M S50 25uF M S50 25uF BUNGRR BL BU N GR R BL JA/VE 6 5 4 3 2 1 RELAIS_6 COM NO N N JA/VE R BU JA MAR BL Interface utilisateur électronique JA/VE V4 V1 V3 V2 N CN7 CS-16004.A0 NLN L1NL2 CN9 CN10 RL1 RL3 RL4 RL5 6 5 4 3 2 1 9 8 7 JA/VE JA BU AU...
Page 18 - ASSISTANCE OU DÉPANNAGE; Si vous avez besoin de pièces de rechange; Pour plus d’assistance :; Au Canada
32 ASSISTANCE OU DÉPANNAGE Avant d’appeler pour de l’assistance ou du dépannage, avoir à portée de la main la date d’achat et les numéros de modèle et de série complets de l’appareil. Ces renseignements nous aideront à mieux répondre à votre demande. Si vous avez besoin de pièces de rechange Pour co...