Page 2 - SÉCURITÉ DE LA MACHINE À GLAÇONS; Risque possible de décès ou de blessure grave si vous ne; Votre sécurité et celle des autres est très importante.; AVERTISSEMENT; IMPORTANTES INSTRUCTIONS DE SÉCURITÉ
19 SÉCURITÉ DE LA MACHINE À GLAÇONS Risque possible de décès ou de blessure grave si vous ne suivez pas immédiatement les instructions. Risque possible de décès ou de blessure grave si vous ne suivez pas les instructions. Tous les messages de sécurité vous diront quel est le danger potentiel et vous...
Page 3 - INSTRUCTIONS D’INSTALLATION; Déballage de la machine à glaçons; Enlèvement des matériaux d’emballage; Vacances ou longue
20 INSTRUCTIONS D’INSTALLATION Déballage de la machine à glaçons Enlèvement des matériaux d’emballage Enlever le ruban adhésif et la colle de la machine à glaçons avant de l’utiliser. ■ Pour enlever tout résidu de ruban adhésif ou de colle de la surface extérieure de la machine à glaçons, frotter vi...
Page 4 - Identifiant du modèle :; Modèles standard; Spécifications électriques; Méthode recommandée de liaison à la terre; Risque de choc électrique
21 Identifiant du modèle : Modèles standard Modèles à panneau personnalisé Zone d’emplacement des fentes/découpes des alimentations et du tuyau de vidange Dimension A 9 po (22,9 cm) B 8 po (20,3 cm) C 7 po (17,8 cm) Diamètre du trou D 2 po (5 cm) ■ Les modèles de machine à glaçon avec panneau person...
Page 5 - Système de vidange par gravité; Vue latérale; Système avec pompe de vidange
22 Spécifications de l’alimentation en eau S’assurer que les tuyaux d’alimentation en eau sont isolés contre le gel. La formation de glace dans les canalisations d’arrivée d’eau peut entraîner une élévation de la pression en eau et endommager la machine à glaçons ou le domicile. La garantie de l’app...
Page 6 - Inversion de la porte; Risque d’écrasement
23 Inversion de la porte 1. Débrancher la machine à glaçons ou couper l’alimentation. 2. Retirer les vis fixant le dessus et le dessous des couvre- charnières en utilisant un tourne-écrou de 3/16 po. 3. À l’aide d’une pince, retirer les couvre-charnières des charnières inférieure et supérieure. REMA...
Page 7 - Préparer les charnières du bas
24 8. Dévisser complètement les vis des charnières de porte supérieure et inférieure et les conserver pour plus tard. 9. Retirer la porte et le conserver à part. Placer les vis de charnières sur le côté opposé. 10. Retirer les vis et charnières du cabinet en utilisant un tournevis Torx T25 et les me...
Page 9 - Inversion du sens d’installation de la gâche de porte; Installation de la pompe de vidange; Contenu de la trousse :
26 5. Serrer de nouveau les deux vis à tête hexagonale dans le bas de la porte. Pour l’installation d’un panneau de porte personnalisé, passer cette étape. 6. Remettre la machine à glaçon debout. Inversion du sens d’installation de la gâche de porte 1. Ôter les vis blanches décoratives du côté oppos...
Page 10 - Si la machine à glaçons est déjà installée; Bouchon de vidange; Panneau arrière
27 Si la machine à glaçons est déjà installée REMARQUE : Si la machine à glaçons n’est pas installée, passer à la section “Installation de la pompe de vidange”. 1. Placer le commutateur à la position d’arrêt. 2. Débrancher la machine à glaçons ou couper l’alimentation. 3. Couper l’alimentation en ea...
Page 12 - Raccordement à la canalisation d’eau
29 14. Fixer le tube de vidange de 1/2 po de diamètre intérieur x 10 pi (3 m) à la pompe de vidange. Voir l’illustration “Emplacements des pièces”. REMARQUE : Ne pas raccorder l’extrémité de sortie du tuyau de vidange à un système de canalisation fermé afin d’empêcher l’eau de vidange de refouler da...
Page 13 - Vue arrière; Mettre de niveau et sécuriser; Outils nécessaires
30 5. Le tuyau d’entrée d’eau est situé sur le côté arrière de la machine à glaçons comme dans l’illustration “Vue arrière”. Plier le tuyau de cuivre pour l’aligner avec le tuyau d’entrée d’eau. Laisser le serpentin de tuyau en cuivre pour permettre de sortir la machine à glaçons de l’armoire ou du ...
Page 15 - Panneau de bois personnalisé; Dimensions du panneau personnalisé
32 Panneau de bois personnalisé Dimensions du panneau personnalisé Pour l’installation d’un panneau décoratif personnalisé, l’installateur devra fabriquer lui-même le panneau ou consulter un ébéniste ou menuisier qualifié IMPORTANT : ■ L’épaisseur du panneau décoratif doit être de 3/4 po (1,91 cm). ...
Page 16 - Installation du panneau personnalisé
33 Installation du panneau personnalisé 1. Retirer les vis et la bride métallique du haut en utilisant un tournevis cruciforme. Les retirer et les conserver pour plus tard. Passer cette étape et poursuivre avec l’étape 4 si l’inversion de la porte a été effectuée. 2. Retirer les capuchons supérieur ...
Page 17 - Raccordement de la vidange; Style 2 –; Installation de la grille auxiliaire
34 Raccordement de la vidange Après avoir vérifié que le système de vidange est adéquat, il faut procéder comme décrit ci-dessous pour bien mettre la machine à glaçons en place : 1. Style 1 – Pour un système de vidange par gravité, s’assurer que le tube de vidange soit positionné au-dessus du réduct...
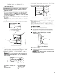
Page 18 - Nettoyage en profondeur; Composants internes; Sur certains modèles
35 Nettoyage en profondeur Composants internes 1. Débrancher la machine à glaçons ou couper l’alimentation. 2. Ouvrir la porte où se trouve le bac à glaçons et retirer tout glaçon qui s’y trouve. 3. Retirer le bouchon de vidange du réservoir d’eau et vidanger ce dernier complètement. Réinstaller le ...
Page 19 - Lavage rapide
36 ■ Laver le support de la cuillère à glaçons en même temps que les autres composants internes en suivant les instructions suivantes. ■ Replacer le support de la cuillère à glaçons en réinstallant les vis.ou sur certains modèles, en poussant le support vers l’intérieur puis le bas. 11. Laver les co...