Hestan GABR42CX2-NG-RD - Manuels

Gril Hestan GABR42CX2-NG-RD - Manuel d'utilisation en ligne au format PDF.

1 Page 1
2 Page 2
3 Page 3
4 Page 4
5 Page 5
6 Page 6
7 Page 7
8 Page 8
9 Page 9
10 Page 10
11 Page 11
12 Page 12
13 Page 13
14 Page 14
15 Page 15
16 Page 16
17 Page 17
18 Page 18
19 Page 19
20 Page 20
21 Page 21
22 Page 22
23 Page 23
24 Page 24
25 Page 25
26 Page 26
27 Page 27
28 Page 28
29 Page 29
30 Page 30
31 Page 31
32 Page 32
33 Page 33
34 Page 34
35 Page 35
36 Page 36
37 Page 37
38 Page 38
39 Page 39
40 Page 40
41 Page 41
42 Page 42
43 Page 43
44 Page 44
45 Page 45
46 Page 46
47 Page 47
48 Page 48
49 Page 49
50 Page 50
51 Page 51
52 Page 52

Résumé

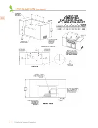
Page 4 - RATING LABEL; minimum installation clearances.; PRECAUTIONS - BEFORE YOU USE YOUR GRILL; described in the INSTALLATION section of this manual.

©2016 Hestan Commercial Corporation 7 EN RATING LABEL The rating label contains important information about your Hestan appliance such as the model and serial number, gas type and manifold pressure, the BTU rating for each burner type, and the minimum installation clearances. PRECAUTIONS - BEFORE YO...

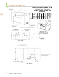
Page 12 - LIRE CE MANUEL ATTENTIVEMENT ET ENTIÈREMENT AVANT D’UTILISER LE

FR ©2016 Hestan Commercial Corporation 2 L’INOBSERVATION DES INFORMATIONS DONNÉES DANS CE MANUEL PEUT ENTRAÎNER UN INCENDIE OU UNE EXPLOSION DE NATURE À CAUSER DES DÉGÂTS MATÉRIELS ET DES BLESSURES GRAVES, VOIRE MORTELLES. Ne pas essayer d’allumer cet appareil sans lire d’abord la section INSTRUCTIO...

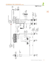
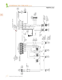
Page 13 - TABLE DES MATIÈRES

FR ©2016 Hestan Commercial Corporation 3 4 NUMÉRO DE MODÈLE 7 PLAQUES SIGNALÉTIQUES 7 PRÉCAUTIONS 10 RESPECT DE LA RÉGLEMENTATION ET DES CODES EN VIGUEUR 10 PBOUTEILLES DE GPL PORTATIVES 11 IMPLANTATION ET ASSEMBLAGE 13 INSTALLATION 16 RACCORDEMENTS DE GAZ 24 INSTRUCTIONS D’ALLUMAGE 27 UTILISATION D...

Hestan Grils Manuels