KitchenAid KMCS3022GSS - Notice d'Installation

KitchenAid KMCS3022GSS

Micro-ondes KitchenAid KMCS3022GSS - Notice d'Installation, à lire gratuitement en ligne au format PDF. Nous espérons que cela vous aidera à résoudre toutes les questions que vous pourriez avoir. Si vous avez encore des questions, contactez-nous via le formulaire de contact.

1 Page 1
2 Page 2
3 Page 3
4 Page 4
5 Page 5
6 Page 6
7 Page 7
Page: / 7

Table des matières:

  • Page 3 – Outillage et pièces; Outillage nécessaire; Exigences d'emplacement; Votre sécurité et celle des autres est très importante.; AVERTISSEMENT
  • Page 4 – Dimensions nécessaires de l'ouverture; Dimensions du cadre de la trousse de; INSTRUCTIONS DE LIAISON
  • Page 5 – Préparation du four à micro-ondes; Préparation de l'ouverture
  • Page 6 – Installation du four à micro-ondes
  • Page 7 – Installation du cadre de la trousse
Téléchargement du manuel

MICROWAVE OVEN BUILT-IN TRIM KIT

INSTALLATION INSTRUCTIONS

Built-In Trim Kit Models MK2227 MK2220

UL listed for use over any electric or gas built-in oven, up to 30" (76.2 cm) wide

INSTRUCTIONS D’INSTALLATION

GARNITURE ENCASTRÉE POUR FOUR À MICRO-ONDES

Garniture encastrée pour modèles MK2227 MK2220

Homologations UL pour utilisation au-dessus de tous les fours encastrés électriques ou à gaz, jusqu’à 30" (76,2 cm) de largeur

MICROWAVE OVEN SAFETY

Table of Contents / Table des matières

MICROWAVE OVEN SAFETY .................................................. 1

INSTALLATION INSTRUCTIONS............................................. 2

Tools and Parts ...................................................................... 2
Location Requirements .......................................................... 2
Required Cutout Dimensions ................................................. 2
Trim Kit Frame Dimensions .................................................... 2
Electrical Requirements ......................................................... 3
Prepare Microwave Oven....................................................... 3
Prepare Cutout/Cabinet Opening .......................................... 3
Install the Microwave Oven .................................................... 4
Install Trim Kit Frame ............................................................. 5

SÉCURITÉ DU FOUR À MICRO-ONDES ........................................... 7

INSTRUCTIONS D’INSTALLATION .................................................... 7

Outillage et pièces ............................................................................. 7
Exigences d'emplacement ................................................................ 7
Dimensions nécessaires de l'ouverture d'encastrement.................. 8
Dimensions du cadre de la trousse de garniture .............................. 8
Spécifications électriques ................................................................. 8
Préparation du four à micro-ondes ................................................... 9
Préparation de l'ouverture d'encastrement/dans le placard ............ 9
Installation du four à micro-ondes .................................................. 10
Installation du cadre de la trousse de garniture ............................. 11

W10434148A

You can be killed or seriously injured if you don't immediately

You

can be killed or seriously injured if you don't follow

All safety messages will tell you what the potential hazard is, tell you how to reduce the chance of injury, and tell you what can
happen if the instructions are not followed.

Your safety and the safety of others are very important.

We have provided many important safety messages in this manual and on your appliance. Always read and obey all safety
messages.

This is the safety alert symbol.

This symbol alerts you to potential hazards that can kill or hurt you and others.

All safety messages will follow the safety alert symbol and either the word “DANGER” or “WARNING.”

These words mean:

follow instructions.

instructions.

DANGER

WARNING

„Téléchargement du manuel“ signifie que vous devez attendre que le fichier soit complètement chargé avant de pouvoir le lire en ligne. Certains manuels sont très volumineux, et le temps de chargement dépend de la vitesse de votre connexion Internet.

Résumé

Page 3 - Outillage et pièces; Outillage nécessaire; Exigences d'emplacement; Votre sécurité et celle des autres est très importante.; AVERTISSEMENT

7 SÉCURITÉ DU FOUR À MICRO-ONDES INSTRUCTIONS D’INSTALLATION Outillage et pièces Outillage nécessaire Rassembler les outils et composants nécessaires avant d'entreprendre l'installation. Lire et observer les instructions fournies avec chacun des outils de la liste ci-dessous. Pièces fournies (pas à ...

Page 4 - Dimensions nécessaires de l'ouverture; Dimensions du cadre de la trousse de; INSTRUCTIONS DE LIAISON

8 Dimensions nécessaires de l'ouverture d'encastrement REMARQUES : ■ La dimension de hauteur est critique : 17" (43,2 cm) au minimum, 17 ¹⁄₈ " (43,5 cm) maximum. ■ Les mesures de largeur et profondeur peuvent être modifiées de ±1/16" (2 mm). ■ La dimension minimale de 3" (7,6 cm) cor...

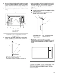
Page 5 - Préparation du four à micro-ondes; Préparation de l'ouverture

9 Préparation du four à micro-ondes 1. Débrancher le four à micro-ondes avant de poursuivre l'installation. 2. Retirer les articles à l'intérieur du four à micro-ondes - le cas échéant. 3. Placer avec précaution le four à micro-ondes sur son sommet en orientant la porte vers l'avant (vers l'installa...

Autres modèles de micro-ondes KitchenAid