Hestan GMBR42-LP - Manuel d'utilisation

Hestan GMBR42-LP

Gril Hestan GMBR42-LP - Manuel d'utilisation, à lire gratuitement en ligne au format PDF. Nous espérons que cela vous aidera à résoudre toutes les questions que vous pourriez avoir. Si vous avez encore des questions, contactez-nous via le formulaire de contact.

1 Page 1
2 Page 2
3 Page 3
4 Page 4
5 Page 5
6 Page 6
7 Page 7
8 Page 8
9 Page 9
10 Page 10
11 Page 11
12 Page 12
13 Page 13
14 Page 14
15 Page 15
16 Page 16
17 Page 17
18 Page 18
19 Page 19
20 Page 20
21 Page 21
22 Page 22
23 Page 23
24 Page 24
25 Page 25
26 Page 26
27 Page 27
28 Page 28
29 Page 29
30 Page 30
31 Page 31
32 Page 32
33 Page 33
34 Page 34
35 Page 35
36 Page 36
37 Page 37
38 Page 38
39 Page 39
40 Page 40
41 Page 41
42 Page 42
43 Page 43
44 Page 44
45 Page 45
46 Page 46
47 Page 47
48 Page 48
49 Page 49
50 Page 50
51 Page 51
52 Page 52
Page: / 52

Table des matières:

  • Page 4 – RATING LABEL; minimum installation clearances.; PRECAUTIONS - BEFORE YOU USE YOUR GRILL; described in the INSTALLATION section of this manual.
  • Page 12 – LIRE CE MANUEL ATTENTIVEMENT ET ENTIÈREMENT AVANT D’UTILISER LE
  • Page 13 – TABLE DES MATIÈRES
  • Page 14 – MODÈLES ENCASTRÉS; MODÈLES AMOVIBLES; Numéro de Modèle; NUMÉROS DE MODÈLE
  • Page 15 – MODÈLES POUR CHARIOT DE QUALITÉ SUPÉRIEUR
  • Page 17 – PLAQUE SIGNALÉTIQUE; type de brûleur et les dégagements minima d’installation.; PRÉCAUTIONS À PRENDRE AVANT D’UTILISER CE GRIL; matière de sécurité doivent être adoptées.; NE JAMAIS LAISSER LE GRIL SANS SURVEILLANCE PENDANT LA CUISSON.
  • Page 18 – etc. Ne pas bloquer les ouïes d’aération du chariot.; PRÉCAUTIONS À PRENDRE AVANT D’UTILISER
  • Page 19 – explosion de la boîte.
  • Page 20 – RESPECT DE LA RÉGLEMENTATION ET DES CODES EN; California Health and Safety Code.; BOUTEILLES DE GPL PORTATIVES; Ne pas entreposer une bouteille pleine en plein soleil.
  • Page 21 – IMPLANTATION ET ASSEMBLAGE DU GRIL; les freins des roulettes pour immobiliser celui-ci.
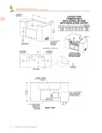
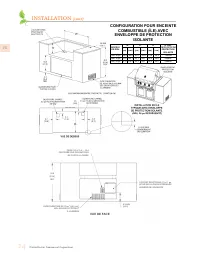
  • Page 23 – toute sécurité en cas de fuite dans l’enceinte.; DIMENSIONS EN CAS D’ENCASTREMENT :; CONFIGURATION
  • Page 24 – CONFIGURATION POUR ENCEINTE
  • Page 25 – VENTILATION SUPPLÉMENTAIRE
  • Page 26 – RACCORDEMENTS DE GAZ; ALIMENTATION EN GAZ; conversion d’un appareil du GPL au gaz naturel, ou vice versa.; KITS POUR HAUTES ALTITUDES
  • Page 27 – RACCORDEMENT DE GAZ – GAZ NATUREL; Standard
  • Page 28 – RACCORDEMENT DE GAZ – BOUTEILLE DE PROPANE LIQUIDE (GPL); RACCORDEMENT DE GAZ – SYSTÈMES DE CONDUITES DE GPL; d’admission de 10,0 po à la colonne d’eau.
  • Page 29 – RETENUE DE BOUTEILLE DE GPL; GÉNÉRALITÉS; d’eau à des fins de contrôle d’étanchéité.
  • Page 30 – POUR EFFECTUER LE CONTRÔLE; CHANGEMENT DE BOUTEILLE DE GPL.; ALIMENTATION ÉLECTRIQUE; L’ÉCART DE TOUTE SURFACE CHAUFFÉE.
  • Page 31 – RÉGLAGES DES BRÛLEURS; RÉGLAGE DE LA FLAMME DES TRELLIS BURNERS; RÉGLAGE DES OBTURATEURS D’AIR
  • Page 32 – Allumer le brûleur et le régler comme suit :
  • Page 33 – RÉGLAGE DE FLAMME DE BRÛLEUR À INFRAROUGE; RÉGLAGE DE FLAMME DE BRÛLEUR LATÉRAL; décrit
  • Page 34 – INSTRUCTIONS D’ALLUMAGE; DISPOSITION DES BOUTONS DE RÉGLAGE; OU BRÛLEUR; l’allumage. S’éloigner autant que possible lors de l’allumage.; ALLUMAGE DU BRÛLEUR DE TOURNEBROCHE; des instructions d’allumage à l’aide d’une allumette.
  • Page 35 – ALLUMAGE DES BRÛLEURS LATÉRAUX; étincelles jusqu’à ce qu’une flamme soit obtenue.; INSTRUCTIONS D’ALLUMAGE À L’AIDE D’UNE ALLUMETTE
  • Page 37 – UTILISATION DU GRIL; La grande jauge de température dans votre hotte Hestan indique
  • Page 38 – L’ENSEMBLE BROCHE / FOURCHETTES; les réglages nécessaires.; LE BRÛLEUR DE TOURNEBROCHE; conçu pour enregistrer la chaleur infrarouge directe.; FUMOIR À COPEAUX DE BOIS; remplir de nouveau de copeaux.; NETTOYAGE ET ENTRETIEN; ENTRETIEN DE L’ACIER INOXYDABLE; garantir une longue durée de service du gril.
  • Page 39 – métalliques, sauf s’ils sont en acier inoxydable.; MARQUES DE ROUILLE BRUNE; ENTRETIEN DES SURFACES PEINTES (LE CAS ÉCHÉANT)
  • Page 40 – Rincer à l’eau douce propre et sécher avec un chiffon propre.; ENTRETIEN DES ÉLÉMENTS DU GRIL; GRILLES DE CUISSON ET DE MAINTIEN AU CHAUD; on laisse d’abord le gril refroidir.; BAC DE RÉCUPÉRATION; NETTOYAGE DU BRÛLEUR DE TOURNEBROCHE; pas couverts par la garantie.; NETTOYAGE DES BRÛLEUR DE SAISIE
  • Page 41 – NETTOYAGE DES ORIFICES CALIBRÉS; Remettre le brûleur en place comme décrit précédemment.; ALLUMEURS; l’empêchant de fonctionner. Le manipuler avec précaution.; NETTOYAGE DES BRIQUETTES ET DES PLATEAUX
  • Page 42 – REMPLACEMENT DES AMPOULES; l’éclairage en faisant attention de ne pas faire tomber le verre.; AUTRES CONSIDÉRATIONS; couvert quand il n’est pas en service.
  • Page 43 – GUIDE DE DÉPANNAGE; Symptôme
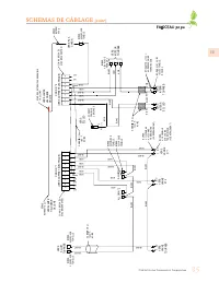
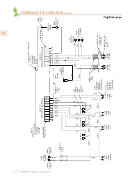
  • Page 44 – SCHÉMAS DE CÂBLAGE
  • Page 45 – FAISCEAU
  • Page 48 – ÉLÉMENTS COUVERTS PAR LA PRÉSENTE GARANTIE LIMITÉE
  • Page 49 – ALLONGEMENTS AU-DELÀ DE LA PÉRIODE DE GARANTIE LIMITÉE D’UN AN:; garantie comme indiqué expressément ci-après :; Dia; manutention le cas échéant, étant à la charge de l’Acheteur.; ÉLÉMENTS NON COUVERTS PAR LA PRÉSENTE GARANTIE LIMITÉE; GARANTIE LIMITÉE
  • Page 50 – d’autres qui varient selon le lieu.
Téléchargement du manuel

OUTDOOR COOKING

Grill with Rotisserie

GABR / GSBR / GMBR

Use & Care Manual

Installation & Operation

„Téléchargement du manuel“ signifie que vous devez attendre que le fichier soit complètement chargé avant de pouvoir le lire en ligne. Certains manuels sont très volumineux, et le temps de chargement dépend de la vitesse de votre connexion Internet.

Résumé

Page 4 - RATING LABEL; minimum installation clearances.; PRECAUTIONS - BEFORE YOU USE YOUR GRILL; described in the INSTALLATION section of this manual.

©2016 Hestan Commercial Corporation 7 EN RATING LABEL The rating label contains important information about your Hestan appliance such as the model and serial number, gas type and manifold pressure, the BTU rating for each burner type, and the minimum installation clearances. PRECAUTIONS - BEFORE YO...

Page 12 - LIRE CE MANUEL ATTENTIVEMENT ET ENTIÈREMENT AVANT D’UTILISER LE

FR ©2016 Hestan Commercial Corporation 2 L’INOBSERVATION DES INFORMATIONS DONNÉES DANS CE MANUEL PEUT ENTRAÎNER UN INCENDIE OU UNE EXPLOSION DE NATURE À CAUSER DES DÉGÂTS MATÉRIELS ET DES BLESSURES GRAVES, VOIRE MORTELLES. Ne pas essayer d’allumer cet appareil sans lire d’abord la section INSTRUCTIO...

Page 13 - TABLE DES MATIÈRES

FR ©2016 Hestan Commercial Corporation 3 4 NUMÉRO DE MODÈLE 7 PLAQUES SIGNALÉTIQUES 7 PRÉCAUTIONS 10 RESPECT DE LA RÉGLEMENTATION ET DES CODES EN VIGUEUR 10 PBOUTEILLES DE GPL PORTATIVES 11 IMPLANTATION ET ASSEMBLAGE 13 INSTALLATION 16 RACCORDEMENTS DE GAZ 24 INSTRUCTIONS D’ALLUMAGE 27 UTILISATION D...

Autres modèles de grils Hestan

Tous les grils Hestan