DCS BH1-30R-N - Manuel d'utilisation

DCS BH1-30R-N

Gril DCS BH1-30R-N - Manuel d'utilisation, à lire gratuitement en ligne au format PDF. Nous espérons que cela vous aidera à résoudre toutes les questions que vous pourriez avoir. Si vous avez encore des questions, contactez-nous via le formulaire de contact.

1 Page 1
2 Page 2
3 Page 3
4 Page 4
5 Page 5
6 Page 6
7 Page 7
8 Page 8
9 Page 9
10 Page 10
11 Page 11
12 Page 12
13 Page 13
14 Page 14
15 Page 15
16 Page 16
17 Page 17
18 Page 18
19 Page 19
20 Page 20
21 Page 21
22 Page 22
23 Page 23
24 Page 24
25 Page 25
26 Page 26
27 Page 27
28 Page 28
29 Page 29
30 Page 30
31 Page 31
32 Page 32
33 Page 33
34 Page 34
35 Page 35
36 Page 36
37 Page 37
38 Page 38
39 Page 39
Page: / 39

Table des matières:

  • Page 6 – R E M A R Q U E; ou dans une pièce sans aération. Pour usage en plein air uniquement.; proximité de cet appareil électroménager ou de tout autre.; POUR VOTRE SÉCURITÉ; Si vous sentez une odeur de gaz :; À L’INTENTION DE NOS CLIENTS
  • Page 7 – TABLE DES MATIÈRES
  • Page 8 – MESURES DE SÉCURITÉ ET DE PRÉCAUTION; IMPORTANTE CONSIGNE DE SÉCURITÉ!; de ce manuel. Ce gril est conçu pour un usage en plein air uniquement.; AUTOCOLLANT
  • Page 9 – utilisation dangereuse.
  • Page 10 – E M P L A C E M E N T D U G R I L
  • Page 11 – Cet appareil est conçu pour un usage en plein air uniquement !; AVERTISSEMENT CONCERNANT LA PROPOSITION 65 DE LA CALIFORNIE :
  • Page 13 – E M P L A C E M E N T :; EMPLACEMENT DU GRIL ET DES DÉGAGEMENTS
  • Page 14 – Espaces de dégagement pour une construction non combustible *:
  • Page 15 – G É N É R A L I T É S; dommages matériels et des blessures corporelles.
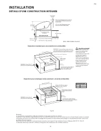
  • Page 16 – DÉTAILS D’UNE CONSTRUCTION INTÉGRÉE
  • Page 17 – MODÈLE
  • Page 18 – D E C O N N E X I O N D O I T Ê T R E E F F E C T U É P A R U N T E C H -; P O U R C O N N E C T E R L E S R A C C O R D S F O U R N I S A V E C L E G R I L :; BRANCHEMENT DU GAZ
  • Page 19 – E X I G E N C E S C O N C E R N A N T L A B O U T E I L L E D E P R O P A N E :; Le Gril est fourni avec un ensemble détendeur/tuyau de
  • Page 20 – E N C A S T R É E S
  • Page 22 – TEST DE DÉTECTION DES FUITES; G É N É R A L I T É S :; Avant la vérification :; d’épreuve d’étanchéité près d’une flamme vive.
  • Page 23 – RÉGLAGE DU BRÛLEUR DU GRIL; R É G L A G E D’A I R D U B R Û L E U R D U G R I L :; R É G L A G E S P O U R N I V E A U B A S :
  • Page 24 – INSTALLATION DE L’ENSEMBLE DU RADIANT; I N S T A L L A T I O N D E L’E N S E M B L E D U R A D I A N T :
  • Page 25 – LISTE DE CONTRÔLE DE L’INSTALLATEUR
  • Page 26 – P O U R A L L U M E R L E B R Û L E U R D U G R I L : ( B G C30- B Q M O D È L E ); Allumage du gril à l’allumette :; UTILISATION DU GRIL; INSTRUCTIONS D’ALLUMAGE; I N S T R U C T I O N S D’A L L U M A G E ( B G C30- B Q R M O D È L E ); Instructions d’allumage du gril :
  • Page 27 – R E M A R Q U E S S U R L A C U I S S O N D I R E C T E/I N D I R E C T E :; CUISSON SUR GRIL
  • Page 28 – IMPORTANT; Utilisation du gril :; U T I L I S A T I O N D E L A J A U G E D E T E M P É R A T U R E ( B H1-30R M O D È L E S ):; C O N S E I L S A U S U J E T D U G R I L :
  • Page 29 – UTILISATION DE LA RÔTISSOIRE
  • Page 31 – Gardez les mains et le visage éloignés de la partie avant du
  • Page 32 – C U I S S O N S U R L A R Ô T I S S O I R E
  • Page 33 – ENTRETIEN ET NETTOYAGE; R E M P L A C E M E N T D E L A P I L E :; R E M P L A C E M E N T D U R É G U L A T E U R E T D U
  • Page 36 – L A F L A M M E D U B R Û L E U R E S T J A U N E O U O R A N G E, E T I L Y A U N E O D E U R D E G A Z :; DÉPANNAGE
  • Page 37 – P O U R L’O B T E N T I O N D U S E R V I C E D E G A R A N T I E :
  • Page 39 – U S C A
Téléchargement du manuel

P R O F E SS I O N A L G R I L L

30 BGC & BH1 models

L E G R I L P R O F E SS I O N N E L

Modèles 30po BGC et BH1

I N STA L L AT I O N G U I D E   /   U S E R G U I D E

G U I D E D ’ I N STA L L AT I O N   /   G U I D E D ’ U T I L I SAT I O N

U S C A

„Téléchargement du manuel“ signifie que vous devez attendre que le fichier soit complètement chargé avant de pouvoir le lire en ligne. Certains manuels sont très volumineux, et le temps de chargement dépend de la vitesse de votre connexion Internet.

Résumé

Page 6 - R E M A R Q U E; ou dans une pièce sans aération. Pour usage en plein air uniquement.; proximité de cet appareil électroménager ou de tout autre.; POUR VOTRE SÉCURITÉ; Si vous sentez une odeur de gaz :; À L’INTENTION DE NOS CLIENTS

1 Nous vous remercions d’avoir choisi ce gril de la série professionnelle « BGC » de DCS. Nous avons conçu ce Manuel pour expliquer les fonctions uniques de ces appareils. Ce manuel contient des informations extrêmement utiles sur la façon correcte de faire fonctionner votre nouvel appareil et d’en ...

Page 7 - TABLE DES MATIÈRES

2 M E S U R E S D E S É C U R I T É E T D E P R É C A U T I O N 3-6 M O DÈL E S D E G R I L 7 I N S T A L L A T I O N Emplacement du gril et des dégagements 8-10 Détails d’une construction intégrée 11-12 Branchement du gaz 13-16 Test de détection des fuites 17 Réglage du brûleur du gril 18 L’ensembl...

Page 8 - MESURES DE SÉCURITÉ ET DE PRÉCAUTION; IMPORTANTE CONSIGNE DE SÉCURITÉ!; de ce manuel. Ce gril est conçu pour un usage en plein air uniquement.; AUTOCOLLANT

MESURES DE SÉCURITÉ ET DE PRÉCAUTION IMPORTANTE CONSIGNE DE SÉCURITÉ! Certains fournisseurs de propane liquide peuvent remplir les bonbonnes de propane liquide du gril au-delà de leur capacité. Ce trop-plein peut créer une situation dangereuse. Une accumulation de pression peut effet se produire dan...

Autres modèles de grils DCS

Tous les grils DCS